Real Estates
物件情報詳細
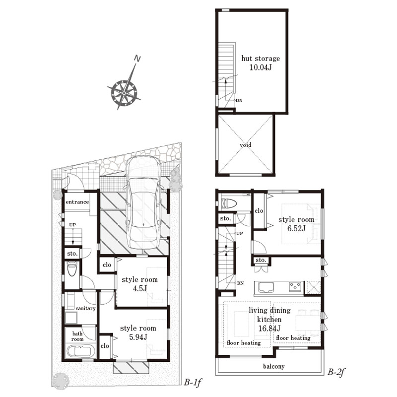
新築戸建 練馬区石神井台6丁目B号棟【専任媒介】
都立石神井公園至近の住環境に優れた立地。リビング天井高約3.5m、広めの南側バルコニーで通風採光良好!
概要
- 住居表示
- 練馬区石神井台6丁目5番16号
- 交通
- 西武池袋線「大泉学園」駅徒歩15分
- 土地権利
- 所有権
- 用途地域
- 第一種低層住居専用地域
- その他
- 第1種高度地区、準防火地域
- 建ぺい率
- 50%
- 容積率
- 100%
- 土地面積
- 80.13㎡(24.23坪)
- 延床面積
- 109.92㎡(33.25坪)
- 構造
- 木造2階建
- 接道
- 南西側公道約4.0m、北西側公道約5.0m
- 設備
- 都市ガス・公営水道・公共下水・東京電力
- 価格
- 7,380万円(税込)
- 販売図面
- PDFをダウンロード
設備・仕様
長期優良住宅
準耐火構造
耐震等級3
断熱等級5
一次エネルギー消費量等級6
住宅瑕疵担保責任保険(10年)
地盤保証付(10年)
しろあり保証付(10年)
制震ダンパー
自社設計施工
無料点検実施(1年・2年)
■オールスライド式食器洗乾燥機付キッチンI型W2550mm(人工大理石カウンター、両面焼きグリル、浄水器一体型水栓) ■暖房乾燥機付ユニットバス1616サイズ(バリアフリータイプ) ■スタイリッシュな洗面化粧台(三面鏡付)W900 ■シャワートイレ(節水機能付)※2階はタンクレス、別途手洗い付 ■躯体内結露を防ぎ、構造体を腐朽から守る外壁通気工法 ■室内ドアはハイドアを採用 ■リビングダイニング各々に温水式床暖房 ■全開口部にLow-eペアガラス(網戸付) ■全居室・廊下・外構すべてにLED照明付 ■TVモニター付ハンズフリーインターホン ■外構一式(境界塀、ポスト、宅配ボックス、照明、シャッター、植栽等)
■オールスライド式食器洗乾燥機付キッチンI型W2550mm(人工大理石カウンター、両面焼きグリル、浄水器一体型水栓) ■暖房乾燥機付ユニットバス1616サイズ(バリアフリータイプ) ■スタイリッシュな洗面化粧台(三面鏡付)W900 ■シャワートイレ(節水機能付)※2階はタンクレス、別途手洗い付 ■躯体内結露を防ぎ、構造体を腐朽から守る外壁通気工法 ■室内ドアはハイドアを採用 ■リビングダイニング各々に温水式床暖房 ■全開口部にLow-eペアガラス(網戸付) ■全居室・廊下・外構すべてにLED照明付 ■TVモニター付ハンズフリーインターホン ■外構一式(境界塀、ポスト、宅配ボックス、照明、シャッター、植栽等)




